Sold

RESIDENCE AND GIFT SHOP - MENDOORAN

WORK FROM HOME AT MENDOORAN
Price reduction ....RESIDENCE AND GIFT SHOP - MENDOORAN
Positioned in the main street of Mendooran. An immaculately presented shop and residence.

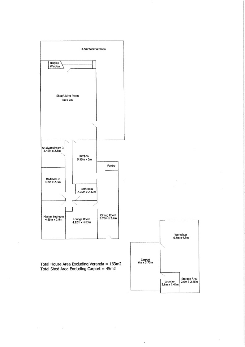
The residence features three bedrooms all spacious with high ceilings, bathroom has been fully renovated, the kitchen can dual as facility for the previous catering within the store and open fire that completes the welcoming ambience of the property.

Big kitchen with dining that flows to the formal dining area. Extremely large classic loungeroom and a classic hallway that winds through the home.
The side yard is perfect for entertaining with large shedding/workshop and power and at the rear yard has another storage shed. The outdoor area is just perfect for entertaining with the large yard, rear lane access and established gardens.

The property has solar power connected to the grid averaging $500/year credit on electricity. A rainwater tank with the option of switching to town water.

The studio is open plan in the front of the premises.

The shop and residence is ideal for those who are waiting to live and work from home. Tourist traffic ensures there is plenty of passing trade.

Mendooran is a popular stop for the travellers with plenty of curio shops, cafe's, hotel, clubs and newsagency.

Keen vendors have reduced the asking price of the property....now $158,000.

Features

Fireplace
3 1 2 2,000 m2
Address 51 Bandulla Street, Mendooran
Price SOLD for $152,000
Property Type Residential
Property ID 12
Category House
Land Area 2,000 m2

Agent Details

Denise Male photo

Denise Male

0408 871 644
View Profile